Műszaki adatok

ellenállóság

ellenállóság

3. vagy 4. osztály, EN-1192

hangszigetelés [dB]

hangszigetelés [dB]

Alapkivitel – Rw = 34 ¸ maximálisan elérhető – 42 dB / RA1 = 32 ¸ 41 dB

hőátbocsátási tényező (U) [W/m²·K]

hőátbocsátási tényező (U) [W/m²·K]

1,1 ¸ 1,6

tűzállósági fokozat

tűzállósági fokozat

EI230 / EI260

DFM DS 30 tűzgátló ajtók

Két 0,75 mm vastag horganyzott acéllemez héjból és az EI 30 tűzállósági osztály esetén 120 kg/m³ testsűrűségű kőzetgyapot magból épülnek fel.

Az ajtószárnyak és a tokok gyárilag a standard színskálából választható színű porszórt porbevonatot kapnak.

A DFM DS tűzgátló ajtók egyszárnyú és kétszárnyú kivitelben készülnek. Beltéri és homlokzati ajtóként egyaránt alkalmazhatók, magyar nyelvű teljesítménydokumentációval.

Alapfelszereltség

  • Csapos bevésőzár,
  • U-alakú rozsdamentes acél kilincs/kilincs rövidcímes,
  • Zárbetét 3db kulccsal,
  • 2 egyedi rozsdamentes acél pánt,
  • 2 biztonsági csap,
  • A szegély mentén gumitömítés és hőre duzzadó tömítés.

Opcionális felszereltség

  • További pánt vagy 3D állítható kivitelű pántok,
  • EN 1125 és EN 179 szerinti pánikzár és pánikvasalat,
  • EN 1154 szerinti ajtócsukók
  • Elektromos zárak,
  • Elektromos zárfogadó és rejtett nyitásérzékelő,
  • Négyszögletes vagy kerek üveg betétek,
  • Tűzgátló szellőzőrácsok,
  • Rozsdamentes acél láblemezek,
  • Tartó mágnes,
  • Automata küszöbök.

Ajtótokok

A DFM DS ajtótokok 3 mm vastagságú alumíniumöntvényből készülnek, alapkivitelben saroktokkal (Z), választhatóan blokktokkal és átfogótok profilokkal. Lehetőség van a hőhídmegszakításos kivitelre is.

A 3 mm vastag alumínium tok nem csupán merevebb az alapkivitelnél, de a hagyományos acéltokokhoz képest nagyobb szabad nyílásméretet eredményez.

A tokok gérbe vágott illesztéseinél rejtett sarokösszekötőket alkalmaztunk. Ezek a hegesztés nélküli kötések kiemelkedő minőségű, esztétikus kialakítást eredményeznek.

Emellett az alumínium ajtótokot nem fenyegeti kültéren vagy más potenciálisan nedves környezetben a korrózió veszélye.

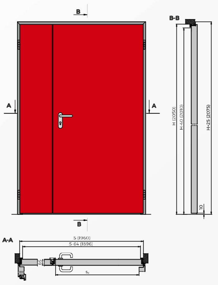
DFM DS 30 egyszárnyú tűzgátló ajtó
DFM DS 30 egyszárnyú tűzgátló ajtó
DFM DS 30 egyszárnyú tűzgátló ajtó

DFM DS 30 HP síkban záródó tűzgátló ajtó

A DFM DS HP síkban záródó tűzgátló acélajtók két 0,75 mm vastag horganyzott acéllemez héjból és az EI 30 tűzállósági osztály esetén 120 kg/m³ testsűrűségű, EI2 60 tűzállósági osztály esetén pedig 140 kg/m³ testsűrűségű kőzetgyapot magból épülnek fel. Az ajtólap teljes vastagsága 65 mm.

Az ajtólap ténylegesen kis súlya a minimálisra csökkenti a pántok, a zár és az ajtócsukó mechanikai igénybevételét. Ez nagyobb tartósságot és hosszabb élettartamot eredményez.

Az ajtószárnyak és a tokok gyárilag a standard színskálából választható színű porszórt porbevonatot kapnak.

A DFM DS síkban záródó tűzgátló ajtók egyszárnyú és kétszárnyú kivitelben készülnek. Beltéri és homlokzati ajtóként egyaránt alkalmazhatók.

DFM 30 DS HP kétszárnyú tűzgátló ajtó
DFM 30 DS HP kétszárnyú tűzgátló ajtó
DFM DS 30 HP síkban záródó tűzgátló kétszárnyú ajtó

DFM DS 120 tűzgátló ajtók


A DFM DS 120 tűzgátló acélajtók két 0,75 mm vastag horganyzott acéllemez héjból, valamint Tecbor ásványgyapot tábla és 140 kg/m³ testsűrűségű kőzetgyapot magból épülnek fel. Az ajtólap teljes vastagsága 65 mm.

Az ajtólap ténylegesen kis súlya a minimálisra csökkenti a pántok, a zár és az ajtócsukó mechanikai igénybevételét. Ez nagyobb tartósságot és hosszabb élettartamot eredményez.

Az ajtószárnyak és a tokok gyárilag a standard színskálából választható színű porszórt porbevonatot kapnak.

A DFM DS tűzgátló ajtók egyszárnyú és kétszárnyú kivitelben készülnek. Beltéri és homlokzati ajtóként egyaránt alkalmazhatók.

DFM DS 120 kétszárnyú tűzgátló ajtó
DFM DS 120 kétszárnyú tűzgátló ajtó
DFM DS 120 kétszárnyú tűzgátló ajtó

DFM DS OS tűzgáltó felnyíló kapu

A DFM DS OS tűzgátló felnyíló kapuk és általános rendeltetésű felnyíló kapuk szárnyai két 0,75 mm vastag horganyzott acéllemez héjból és 140 kg/m³ testsűrűségű kőzetgyapot magból épülnek fel. Az ajtólap teljes vastagsága 65 mm.

Az ajtólap ténylegesen kis súlya a minimálisra csökkenti a pántok, a zár és az ajtócsukó mechanikai igénybevételét. Ez nagyobb tartósságot és hosszabb élettartamot eredményez.

Az ajtószárnyak és a tokok gyárilag a standard színskálából választható színű porszórt porbevonatot kapnak.

A DFM DS OS tűzgátló és általános rendeltetésű kapuk kétszárnyú kivitelben készülnek. Beltéri és homlokzati ajtóként egyaránt alkalmazhatók.

DFM DS OS tűzgátló kétszárnyú ajtó
DFM DS OS tűzgátló kétszárnyú ajtó
DFM DS OS tűzgáltó felnyíló kapu

DFM DS általános rendeltetésű, nem tűzgátló ajtók

A DFM DS általános rendeltetésű acélajtók két 0,75 mm vastag horganyzott acéllemez héjból és 120 kg/m³ testsűrűségű kőzetgyapot magból épülnek fel. Az ajtólap teljes vastagsága 65 mm. Az ajtólap ténylegesen kis súlya a minimálisra csökkenti a pántok, a zár és az ajtócsukó mechanikai igénybevételét. Ez nagyobb tartósságot és hosszabb élettartamot eredményez.

Az ajtószárnyak és a tokok gyárilag a standard színskálából választható színű porszórt porbevonatot kapnak.

A DFM DS általános rendeltetésű ajtók egyszárnyú és kétszárnyú kivitelben készülnek. Beltéri és homlokzati ajtóként egyaránt alkalmazhatók.

DFM DS általános rendeltetésű, nem tűzgátló egyszárnyú ajtó
DFM DS általános rendeltetésű, nem tűzgátló egyszárnyú ajtó
DFM DS általános rendeltetésű, nem tűzgátló egyszárnyú ajtók
Kapcsolódó hírek
MCR Dunamenti tűzgátló nyílászáró referenciák
MCR Dunamenti tűzgátló nyílászáró referenciák
Az MCR Dunamenti Zrt. tűzgátló nyílászárókkal foglalkozó üzletága tűzgátló ajtók és tűzvédelmi függönyök szállítására és kivitelezésére specializálódott. Az elmúlt időszakban számos nagy volumenű és kiemelt jelentőségű beruházásban vettek részt, ahol magas minőségű, megbízható tűzvédelmi megoldásaik járultak hozzá az épületek biztonságához.
MCR Dunamenti tűzgátló nyílászáró referenciák
Tűzgátló ajtók a Mercor Dunamenti Zrt. kínálatában
Tűzgátló ajtók a Mercor Dunamenti Zrt. kínálatában
A DFM ajtó letisztult és modern megjelenésével minden helyiséghez illeszkedik. Az egységes dizájn és a homogén felület exkluzív hatást kelt, miközben a funkcionalitás marad a középpontban.
Tűzgátló ajtók a Mercor Dunamenti Zrt. kínálatában
További termékek a cégtől
MD RS EI tűzfüggönyök
 
MD RS EI tűzfüggönyök

A MD RS EI tűzfüggönyök alkalmasak tűzterek és tűzszakaszok elválasztására középületekben és ipari létesítményekben. A MD RS EI tűzfüggönyök legfontosabb előnye, hogy nem szükséges hozzájuk oltórendszer kiépítése, telepítése.

Termékismertető
Tovább
Termék kártya
Ajánlott kategóriák
Tűzvédelmi nyílászárók, függönyfalak és függönyök, füstkötényfalak, speciális ajtók
Tűzvédelmi nyílászárók, függönyfalak és függönyök, füstkötényfalak, speciális ajtók
Füstjelző, tűzjelző és oltásvezérlő rendszerek
Füstjelző, tűzjelző és oltásvezérlő rendszerek
Füstérzékelők, tűzérzékelők
Füstérzékelők, tűzérzékelők
Kézi jelzésadók tűzjelző rendszerekhez
Kézi jelzésadók tűzjelző rendszerekhez
Tartalékvilágítás, jelzőfények
Tartalékvilágítás, jelzőfények
Épületszerkezetek

Nyílászáró, szigetelés, burkolat, ...

Épületgépészet

Kazán, klíma, légkezelő, szaniter, ...

Épületvillamosság

Elosztó, lámpa, tűzjelző, kamera, ...

Berendezések

Utcabútor, targonca, irodabútor, ...

Eszközök

CAD szoftver, hőkamera, vésőgép, ...